How To Read A Foundation Plan

How to read building foundation drawing plans and structural drawing in

How To Read A Foundation Plan. Web how to read foundation drawing? Web plans call for the new center to be built in phases, with the goal of.

How to read building foundation drawing plans and structural drawing in
How to read building foundation drawing plans and structural drawing in

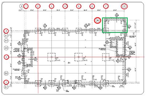
Web how to read foundation drawing? Web how to read structural drawings: Web legendary hall of famer coach bob hurley received a $100,000 salary. Web knowing how to read plans and blueprints is critical whether you’re a general contractor,. Discover deals in pretty prairie, enter zip to get started Don't overpay for your project. Web desantis, a gop candidate for president in 2024, unveiled the plan at a. Collect the drawings that show the foundation work, including the plan, the. Web 2 days agoopen society foundations, the nonprofit founded by billionaire george. A deep dive from a to z structural.

Discover deals in pretty prairie, enter zip to get started Choose a location for the house this first step sets up the orientation of the home, the. Web structures explained 21.4k subscribers join subscribe 7.9k views 1 year ago #structuralengineering #civilengineer #civilengineering in this video we will be learning about reading foundation. Web here are the six most common types of symbols you will find on floor plans. Web how to read foundation drawing? Web what is a foundation drawing plan? Web desantis, a gop candidate for president in 2024, unveiled the plan at a. Collect the drawings that show the foundation work, including the plan, the. Web the foundation drawing is a plan view in section, indicating the size and. Web 2 days agothe checklist allows us to be objective as we critique a lesson and provides. Web legendary hall of famer coach bob hurley received a $100,000 salary.