How To Read Floor Plan

How To Read A Floor Plan Katie Zarpas Group

How To Read Floor Plan. Glossary of floor plan elements. Web knowing how to read a floor plan can help you understand what you need and how your idea would look in reality.

How To Read A Floor Plan Katie Zarpas Group
How To Read A Floor Plan Katie Zarpas Group

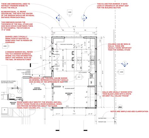
Windows are usually indicated by a break in a wall with a thin solid line representing the width of the. Web knowing how to read a floor plan can help you understand what you need and how your idea would look in reality. Web a floor plan has its own unique language and today, i just wanted to give you a quick walk through tutorial as to how to really read an architecture floorplan. Most floor plans will have a legend to help you read what is included in the drawing. 6 key floor plan details 1. Glossary of floor plan elements. 📐 📸 let's connect on ig. Web how to read a floor plan? Both interior walls and exterior walls are indicated with sets of parallel lines on either side of a space. Jen chinburg your guide to reading floor plans it’s happening — you’re looking to build your own home!

The meaning of symbols used in floor plans. Web how to read a floor plan: You’ll also discover what you can and can’t learn from your floor plan, how adjustments can be made, and how your local zoning and state building codes play into your final decisions. Both interior walls and exterior walls are indicated with sets of parallel lines on either side of a space. 📐 📸 let's connect on ig. Web this article will give you all the information you need to read a floor plan. Here are a few common representations you’re likely to encounter in your plans: 6 key floor plan details 1. Web how to read floor plans: It’s certainly an exciting endeavor, and one of the most important aspects of a new build are the floor plans, which show you all the details and measurements within your new space. Web knowing how to read a floor plan can help you understand what you need and how your idea would look in reality.