How To Read Structural Drawings

Reading structural drawings How to Read Structural Drawings YouTube

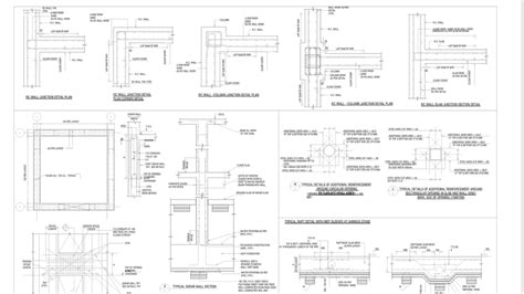
How To Read Structural Drawings. Web structural drawings are a series of pages which explain and illustrate the structural framing of a building or structure including its strength, member size and stiffness characteristics. You’ll see a structural drawing for each floor of the house.

Reading structural drawings How to Read Structural Drawings YouTube
Reading structural drawings How to Read Structural Drawings YouTube

It is crucial that you read everything and understand it before you estimate or start the construction project! When starting out reading structural drawings can seem. Structural tagging, symbols, and abbreviations. The intent of this video is to provide insight into. Web reading structural drawings 1. Web the structural drawings show how the house will be framed, and how the building will be given its structure. Web how to read structural drawings 1. Web this video explains how you can read the beam sections of the structural drawings. The length of extra bars and why they are required. If you are in the construction industry or renovating your own house, the ability to read structural drawings and plans is a very important skill to have and.

Web structural drawings are a series of pages which explain and illustrate the structural framing of a building or structure including its strength, member size and stiffness characteristics. It is crucial that you read everything and understand it before you estimate or start the construction project! A general structural note sheet is usually the first sheet or the cover of the. You’ll see a structural drawing for each floor of the house. Reading construction blueprints & plans | #1 mattbangswood 1m views 7 basic points for civil engineers | basic knowledge for civil engineers | civil engineering. When dealing with how to read the structural drawing, you will. They are shown from the ground up; This page usually contains a drawing of the actual project. The intent of this video is to provide insight into. When starting out reading structural drawings can seem. Web structural drawings are a series of pages which explain and illustrate the structural framing of a building or structure including its strength, member size and stiffness characteristics.