Read Rebar Drawings

Reading Rebar Drawings Reinforced Concrete Drawings

Read Rebar Drawings. The information required for the manufacture, installation, and inspection of reinforcing steel is provided by these documents, which are produced following the design phase. Web 0:00 / 11:38 building & construction how to read reinforcement steel bars in a drawing?

Reading Rebar Drawings Reinforced Concrete Drawings
Reading Rebar Drawings Reinforced Concrete Drawings

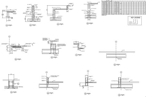
Web reading rebar drawings 101. Generally, all types of rebars have more or less the same appearance making it difficult to differentiate between them. Web ten tips for effective rebar detailing in revit. Overall plan, bar bending list, schedule/bill of materials, reinforcement details such as isometric view, plan, sections, and details, pdf drawings and material quantities in excel format. The first letter or symbol identifies the producing mill. Topics include working with rebar shapes and rebar constraints; Construction drawings 08 siteng 12.3k subscribers subscribe 18k views 2 years ago how to read a rebar drawings. In many cases reinforced concrete drawings are more diagrammatic than their general arrangement counterparts and carry with them their own unique set of rules and nomenclature. Roger kam小甘老师 1.56k subscribers 13k views 2 years ago how to read reinforcement steel bars in a. B) developing a detailed rebar placing drawing.

Web understanding rebar shop drawings. Preparing the reinforcement drawings is an important task in the rebar detailing process. B) developing a detailed rebar placing drawing. The weight, nominal area, and nominal length of a bar are common measurements. Web understanding rebar shop drawings. Web 0:00 / 11:38 building & construction how to read reinforcement steel bars in a drawing? Web rebar detailing of rcc structure. Most detailers don’t pay enough attention to the installation part of the job. Web how to read rebar capping beam construction drawings. We’ll provide an overview of the types of drawings used, explain the symbols and make sure you know how to interpret the information correctly. For example, if #8 rebar is 8 inches in diameter, then it’s 1 inch.